Je vous propose cette magnifique maison moderne située dans un quartier calme et recherché. Avec une surface habitable de 500 m², elle offre des espaces lumineux et conviviaux, parfaits pour une grande famille.
Emplacement

7, Avenue de l’Environnement, L’Aouina 2060, Tunis (En face de la caserne militaire de L’Aouina). Très calme et bien sécurisée. La maison se situe dans le quartier de L’Aouina à Tunis, le long de l’avenue de l’Environnement. Cette avenue est bordée de divers commerces et services, notamment des parapharmacies, des magasins de linge de maison et des établissements de restauration rapide. L’avenue abrite également le Lycée El Aouina, un établissement d’enseignement secondaire.
Infomation
| Bâti en | 02.2012 – 10.2016 |
| Terrain | 325m² |
| Surface bâti | plus que 500m² |
| Salles de bain | 3 |
| Prix négociable | 1.450 miles dinars |
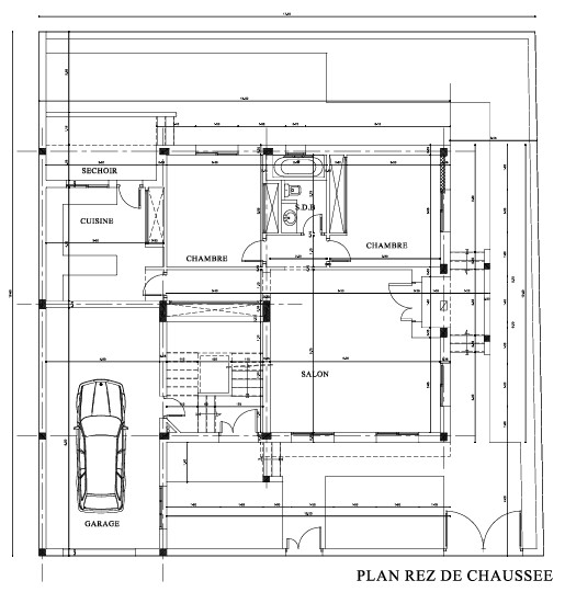
Rez-de-chaussée

| Objet | L | l | Surface |
|---|---|---|---|
| Escalier | 4,45 | 3,9 | 17,355 |
| Cuisine | 4 | 3,5 | 14 |
| Séchoir | 3,9 | 1,25 | 4,875 |
| Chambre | 3,95 | 3,9 | 15,405 |
| Chambre | 3,95 | 3,4 | 13,43 |
| Couloire | 3,4 | 1,1 | 3,74 |
| Salon | 6 | 5 | 30 |
| Surface total | 98,805 | ||
Garage et Jardin
| Objet | L | l | Surface |
|---|---|---|---|
| Garage | 8,5 | 4 | 34 |
| Cuisine Extérieur | 4 | 3 | 12 |
| Surface total | 46 | ||
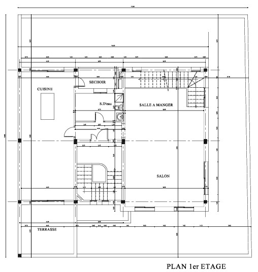
1er Etage

| Objet | L | l | Surface |
|---|---|---|---|
| Cuisine | 9,8 | 4 | 39,2 |
| Séchoir | 3 | 1,65 | 4,95 |
| Sale d’eau | 3,7 | 2,1 | 7,77 |
| Salon | 10,3 | 6 | 61,8 |
| Couloire | 3,7 | 1,3 | 4,81 |
| Escalier | 4,45 | 3,9 | 17,355 |
| Surface total | 135,885 | ||
2eme Etage

| Objet | L | l | Surface |
|---|---|---|---|
| Salon | 6 | 3,85 | 23,1 |
| Terrasse | 5,2 | 0,9 | 4,68 |
| Salle de bain | 3,55 | 2,2 | 7,81 |
| Dressing | 3,55 | 2,9 | 10,295 |
| Chambre Parents | 5,05 | 4,5 | 22,725 |
| Salle de Bain Parents | 3,55 | 2,7 | 9,585 |
| Chambre Parents | 5 | 4,5 | 22,5 |
| Couloire | 3,55 | 2,3 | 8,165 |
| Chambre 1 | 3,95 | 3,5 | 13,825 |
| Chambre 2 | 4,5 | 3,5 | 15,75 |
| Balcon | 3,8 | 1,25 | 4,75 |
| Surface total | 143,185 | ||
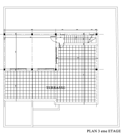
3eme Etage

| Objet | L | l | Surface |
|---|---|---|---|
| Salon | 7,8 | 5,15 | 40,17 |
| Escalier | 6 | 1,2 | 7,2 |
| Terrasse | 14,5 | 4,65 | 67,425 |
| Terrasse | 6,1 | 3,25 | 19,825 |
| Surface total | 134,62 | ||
Façade principale


Garage

Jardin
Un grand jardin arboré avec terrasse vous invite à profiter des beaux jours en toute tranquillité.
Entourée de trois faces

Cuisine du jardin

1er Etage
Cuisine 1ere Etage

Séchoir

Terrasse cuisine

Salon 1er Etage

2.eme Etage
Suite parente avec salle de bain et dressing avec grand balcon
Dressing suite parente

Chambres enfants et une autre salle de bain
Chambre enfant


3eme Etage

Atouts supplémentaires
Grande Salon avec une grande terrasse extraordinaire vue sur la goulette et berge des lac Tunis
✅ Chauffage central gaz, 5 climatiseurs, panneaux solaires
✅ Proximité des écoles, commerces et transports
✅ Vue sur lac de Tunis et la goulette
📞 Pour plus d’informations ou une visite, contactez-moi sur WhatsApp au +4917631563693 ou par e-mail à mourad@mehdouani.de
